Nederlands Nederlands nl
íslenska íslenska is English English en
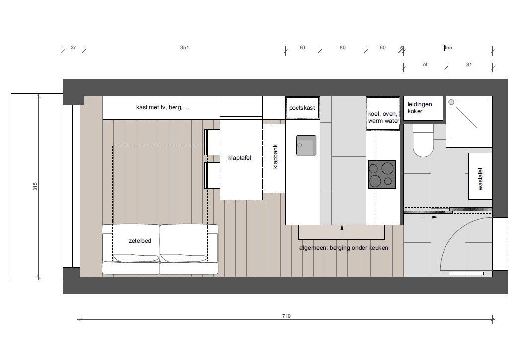
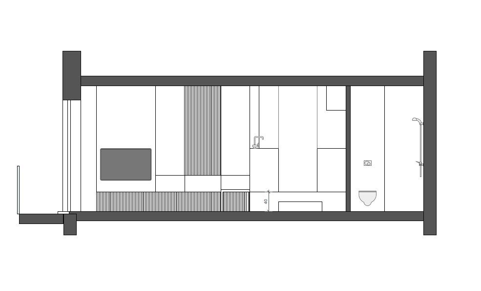
  • Compact wonen
  • Thuiskantoor
  • Zorgwoning
  • Contacteer ons

MCM

  • Button
  • Button
  • Button
Meer bekijken
  • Button
  •  

     Lítill  buiten-gewoon compact    is een onderdeel van CvoorU BV  met  RPR  BE 0729 673 590

    Share by: